Contact Robert Frost, frost@signaturerpartners.com, (212) 813-3575

Artist’s rendering

New York Regional Food Hub

Logistics Warehouse for Long Term Sublease

Address: 298 Halleck Street

Neighborhood: Hunts Point Bronx

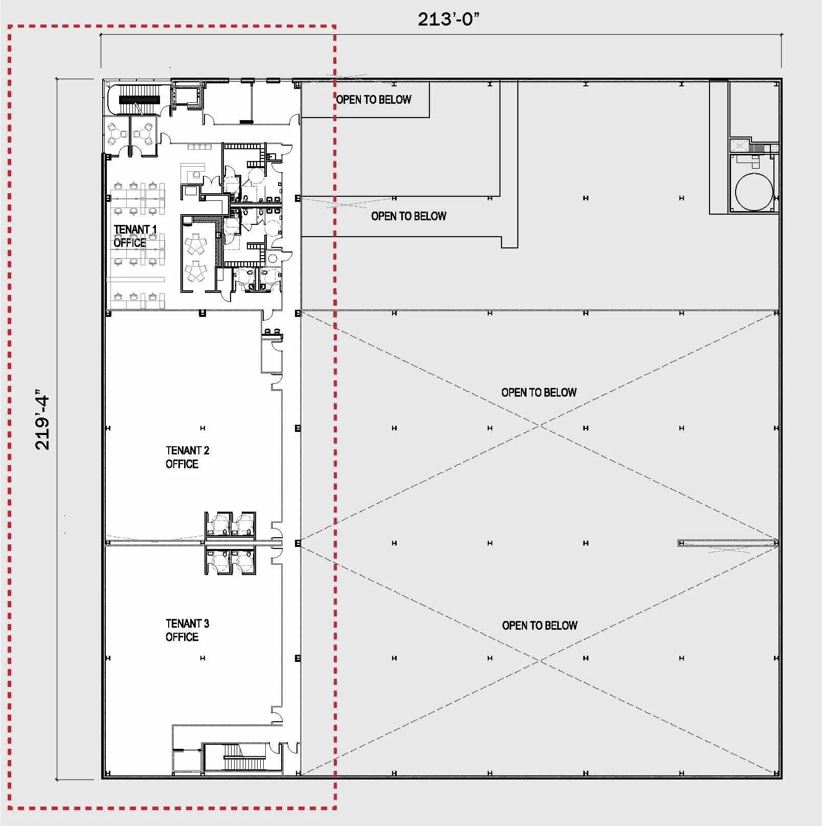
Size: Warehouse: Approximately 33,006 SF (Divisible)

Office: Approximately 8,586 SF (Divisible)

Rental Rate: Upon Request

Term: 5 to 20 years

Notes:

New York Regional Food Hub sublease from GrowNYC. Can be used for wet, dry or refrigerated space. Will be delivered ready for tenant’s installation. Tax benefits available through “ICAP Equivealent” PILOT program.

  • 10 tenant-exclusive loading docks

  • Parking lot with 76 spaces

  • Ceiling height: 24’ 6”

Download FLYER

Contact: Robert Frost, frost@signaturepartners.com, 212.813.3575

Contact Robert Frost, frost@signaturerpartners.com, (212) 813-3575